Wenn immer mehr Leipziger wieder rausziehen in die Landkreise, viele junge Menschen, die in Leipzig zwar eine Arbeit, aber keine Wohnung gefunden haben, gleich dort eine Familie gründen, dann steigen auch in den attraktiven Städten der Landkreise wieder die Kinderzahlen. Und da hat nun auch Eilenburg ein notwendig gewordenes Schulerweiterungsprojekt angepackt. Die Friedrich-Tschanter-Oberschule wird erweitert.
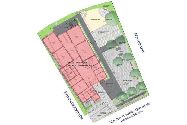
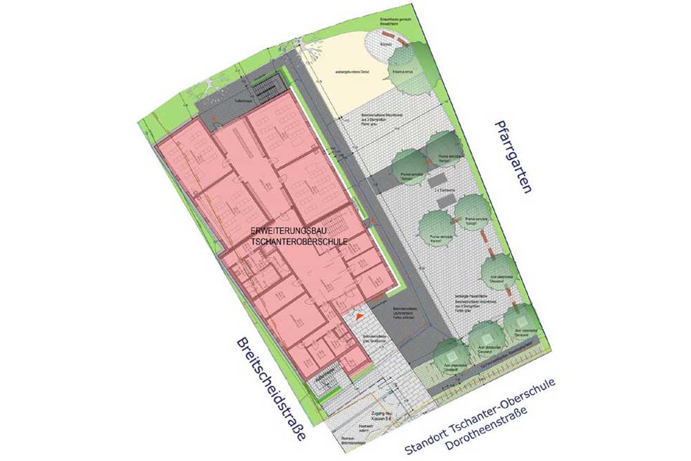
Der geplante Erweiterungsbau wird als Neubau im Bereich des Pfarrgarten errichtet. Die Oberschule erfreut sich wachsender Beliebtheit, was auch Ausdruck der positiven Einwohnerentwicklung von Eilenburg ist. Der Eilenburger Stadtrat beschloss vor zwei Jahren die Erweiterung der Oberschule.
Die Friedrich-Tschanter-Oberschule wurde in den Jahren 2009 bis 2012 als dreizügige Oberschule um- und ausgebaut. Womit auch Eilenburgs Stadtrat damals nicht rechnete: Die Schülerzahlen wuchsen in den vergangenen Jahren an und führten dazu, dass zunehmend Belastungen im Schulbetrieb in Folge der Doppel- und Dreifachnutzungen von Räumlichkeiten auftraten. In Gesprächen mit dem Landesamt für Schule und Bildung und dem Landkreis Nordsachsen wurde vor längerer Zeit festgestellt, dass langfristig der Bedarf für eine vierzügige Oberschule in Eilenburg gegeben ist.
In Abstimmungen mit den Stadträten, der Stadtverwaltung und der Schule wurde die Entscheidung getroffen, den Neubau im Pfarrgarten, nördlich der Schule, zu errichten. Die bauvorbereitenden Maßnahmen beginnen im Herbst dieses Jahres und sollen auch bis Ende 2020 abgeschlossen sein. Vorerst wird eine Mischwasserleitung in den Randbereich des Grundstückes verlegt sowie die vorhandenen Stromfreileitungen entfernt und dann als Erdkabel verlegt.
Der Baustart für das Gebäude ist im Februar 2021 vorgesehen. Es soll ein zweigeschossiger Neubau mit acht Klassenzimmern der Klassenstufen fünf und sechs entstehen. Weiterhin finden noch nachfolgende Räumlichkeiten ihren Platz im neuen Gebäude: ein Lehrerzimmer, ein Gruppen-, ein Bio-Vorbereitungs-, ein Lehrmittel-, ein Arzt und ein Schulsozialarbeiterraum, ein Elternsprechzimmer, ein Archiv, Hausanschlussräume, WCs und Abstellräume für den Hausmeister.
Das Dach wird Grünbereiche besitzen und mit Hochbeeten als Schulgartenfläche genutzt. Auch 122 Fahrradstellplätze werden vor dem 815 qm großen Gebäude gebaut. Weiterhin wird der bisher unbefestigte Schotterparkplatz an der Ecke Dorotheenstraße/Breitscheidstraße im Zuge der Maßnahme ausgebaut und es entstehen dort 19 PKW-Stellplätze. Die Baukosten betragen insgesamt 5,1 Millionen Euro, wovon 60 Prozent über die Förderrichtlinie SchulInfra des Freistaates Sachsen gefördert werden. Die Fördermittel wurden bereits von der Sächsischen Aufbaubank bewilligt.
Kürzlich wurden auch alle Anwohner der Breitscheidstraße sowie der Straße „Am Kirchgarten“ zu einer Anwohnerversammlung eingeladen und über das Bauvorhaben informiert. Die interessierten Anfragen der anwesenden Einwohner konnten zufriedenstellend beantwortet werden, teilt das Eilenburger Rathaus mit, und die Anwohner gaben der Verwaltung gute Hinweise für das Bauvorhaben.
Zum Schulbeginn des Schuljahres 2022/2023 soll der Neubau fertiggestellt sein. Mit dem Neubau ist eine wesentliche Entspannung der Nutzung des Hauptgebäudes zu erreichen. Die räumliche Erweiterung der Oberschule sichert einen zukunftsfähigen Schulstandort, entspannt die aktuelle Situation und schafft gleichzeitig Voraussetzungen für eine individuellere und flexiblere Unterrichtsgestaltung auch unter Beachtung von Inklusion.
Der Leipziger OBM-Wahlkampf in Interviews, Analyse und mit Erfurter Begleitmusik
Der Leipziger OBM-Wahlkampf in Interviews, Analyse und mit Erfurter Begleitmusik
Hinweis der Redaktion in eigener Sache (Stand 24. Januar 2020): Eine steigende Zahl von Artikeln auf unserer L-IZ.de ist leider nicht mehr für alle Leser frei verfügbar. Trotz der hohen Relevanz vieler Artikel, Interviews und Betrachtungen in unserem „Leserclub“ (also durch eine Paywall geschützt) können wir diese leider nicht allen online zugänglich machen. Doch eben das ist unser Ziel.
Trotz aller Bemühungen seit nun 15 Jahren und seit 2015 verstärkt haben sich im Rahmen der „Freikäufer“-Kampagne der L-IZ.de nicht genügend Abonnenten gefunden, welche lokalen/regionalen Journalismus und somit auch diese aufwendig vor Ort und meist bei Privatpersonen, Angehörigen, Vereinen, Behörden und in Rechtstexten sowie Statistiken recherchierten Geschichten finanziell unterstützen und ein Freikäufer-Abonnement abschließen (zur Abonnentenseite).
Wir bitten demnach darum, uns weiterhin bei der Aufrechterhaltung und den Ausbau unserer Arbeit zu unterstützen.
Vielen Dank dafür und in der Hoffnung, dass unser Modell, bei Erreichen von 1.500 Abonnenten oder Abonnentenvereinigungen (ein Zugang/Login ist von mehreren Menschen nutzbar) zu 99 Euro jährlich (8,25 Euro im Monat) allen Lesern frei verfügbare Texte zu präsentieren, aufgehen wird. Von diesem Ziel trennen uns aktuell 350 Abonnenten.
Alle Artikel & Erklärungen zur Aktion „Freikäufer“
So können Sie die Berichterstattung der Leipziger Zeitung unterstützen:









Keine Kommentare bisher