Da hätte wohl auch Schulbürgermeister Thomas Fabian kurz mal mitfahren sollen nach Paunsdorf zur Eröffnung des neu gestalteten Gutspark Paunsdorf. Denn die Kinder fanden den Park in seiner neuen Gestalt toll. Aber einen Wunsch mussten sie dann noch intonieren: Ihre Schule soll hinfort nicht mehr 24. Grundschule heißen, sondern – weil der Park so schön geworden ist – Grundschule am Gutspark Paunsdorf.
Oder war da noch was? Ja. Schulleiter Ralf Weinhold merkte es ganz vorsichtig im Nebensatz an. Denn die 24. Schule hat zwar jetzt auch einen eigenen Zugang zum neu gestalteten Gutspark bekommen, sodass man auch zum Naturkundeunterricht schnell mal rübergehen kann in diesen einmalig schönen Naturraum, also direkt mit den vielen Tieren, Insekten und Pflanzen, die im 300 Jahre alten Park einen Lebensraum gefunden haben, und ein wenig forschen kann.
Aber der Schulhof.
Nein, er ist wirklich nicht in einem Zustand wie er sein könnte, meinte Ralf Weinhold. Dabei gibt man sich in der Schule richtig Mühe. Die Kinder wechseln sogar das Schuhwerk, wenn sie das Schulgebäude betreten – um die Böden zu schonen. Und Handys bleiben aus, steht in der Schulordnung.
Ist das auch schon an anderen Schulen so?

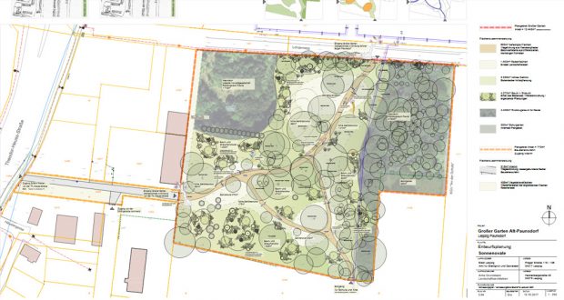
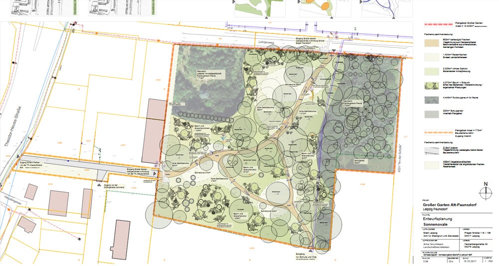
Vor einem Jahr hatte das Umweltdezernat angekündigt, dass der alte Rittergutspark wieder hergerichtet und für die öffentliche Nutzung geöffnet werden soll. Diesmal nicht allein in Kooperation mit den üblichen Landschaftsarchitekten, denn was hier gerade in den letzten Jahrzehnten als Lebensraum entstanden ist, sollte erhalten bleiben, die Eingriffe sollten so gering wie möglich ausfallen, das mäandernde Wegesystem so zurückhaltend wie möglich. Man holte sich den NABU Leipzig mit ins Boot. Und diese Kooperation habe richtig gut geklappt, geradezu vorbildlich auch für andere Parks, meinte am Donnerstag, 20. Juni, zur Parkeröffnung Karsten Peterlein für den NABU.
Dass der Park einmal Teil des historischen Rittergutes aus dem 17. Jahrhundert war, davon erzählen jetzt Tafeln am Wegrand.
Nach seiner Umgestaltung wurde der Park am Donnerstag ganz offiziell durch Baubürgermeisterin Dorothee Dubrau und Umweltbürgermeister Heiko Rosenthal wiedereröffnet. Rosenthal wies darauf hin, dass der Park sich einordnet in den großen Grünzug Grüner Bogens Paunsdorf. Umgesetzt wird hier mal völlig anders als etwa im Clara-Zetkin-Park das Thema „Natur in der Stadt“. Die Infotafeln erzählen so manches zu Natur und Geschichte des Parks, dazu gibt es farbenfrohe, einfallsreiche Orientierungshilfen „Wegzeichen der Natur“.
„Mit der Umgestaltung der Anlage entstand eine öffentlich nutzbare Grünverbindung zwischen Alt- und Neu-Paunsdorf mit Anknüpfung an den Grünen Bogen Paunsdorf“, erläutert Heiko Rosenthal. „Der neu geschaffene Naturerfahrungsraum lädt nun zum Spazieren und Verweilen ein. Die Randbereiche mit ihren Gehölzen bieten den im Park lebenden Vögeln, Insekten und anderen Tieren die erforderlichen Rückzugsmöglichkeiten. Auch die vorhandene Imkerei konnte im Park verbleiben.“
Diese „Randbereiche“ sind deutlich größer als bei den bisher üblichen Parkgestaltungen, worauf Karsten Peterlein einging. 140 Meter künstliche Hecken sorgen dafür, dass die tieferen Parkbereiche auch wirklich den dort heimischen Tieren gehören. Auch für Stadtbienen fand sich ein separates schattiges Plätzchen. Nisthilfen wurden aufgehängt und Schutzräume für Igel geschaffen.
„Wir konnten hier eine einzigartige Grünfläche aus ihrem Dornröschenschlaf holen“, meint Baubürgermeisterin Dorothee Dubrau. „Jahrelang ungenutzt und verschlossen, verfügen die Anwohnerinnen und Anwohner mit dem Gutspark Paunsdorf heute über viel Raum zur Erholung, eine neue Verbindung zwischen Alt- und Neupaunsdorf und die Kinder über ein wohn- und schulortnahes Spielgelände.“
Die Anwohner nutzten den Eröffnungstag auch dazu, Heiko Rosenthal, der ja als Ordnungsbürgermeister auch für die Abfallpolitik der Stadt verantwortlich ist, auf das leidige Problem mit wilden Müllablagerungen aufmerksam zu machen. Gerade die Gebüsche am Lehdenweg werden von einigen Zeitgenossen immer wieder genutzt, ihren heimischen Abfall zu entsorgen. Und nun befürchten die Anwohner wohl auch zu Recht, dass diese rücksichtslosen Mitmenschen auch den schönen neuen Park als Müllkippe missbrauchen könnten.
Dafür, so kündigte Rosenthal an, werde man die Anlage regelmäßig bestreifen. Was die Besorgten natürlich nicht beruhigte. Denn am Donnerstag war ja noch unversehrt und in aller Schönheit zu sehen, was für ein Kleinod Paunsdorf da bekommen hat.
Hintergrundinformationen der Stadt
Die beiden Haupteingänge am Lehdenweg und an der Theodor-Heuss-Straße wurden durch einen dauerhaften Pflasterweg verbunden. Eine Besonderheit sind die sogenannten „Wegzeichen der Natur“, Wegweiser aus Metall, deren Gestaltung sich an florale Naturformen anlehnt. Sie sorgen für Orientierung und unterstützen die einzigartige Atmosphäre des Parks. Die Umfriedung des Parks wurde erneuert. Schule, Hort und Kita erhielten ihren separaten Eingang.
Eine weitere Besonderheit sind die sechs Info-Tafeln zur Natur und Geschichte des Parks. Diese entstanden in enger Kooperation zwischen der 24. Grundschule, dem Hort, dem NABU Leipzig, dem Ortschronisten, den Planern sowie der Stadtverwaltung.
Die Neugestaltung des Gutsparks ist eines der Projekte, die mithilfe des Förderprogramms Soziale Stadt umgesetzt werden. Die Gesamtkosten des Vorhabens betragen rund 360.000 Euro. Davon kommen 240.000 Euro aus dem Bund-Länder-Programm Soziale Stadt und 120.000 Euro aus dem städtischen Haushalt. Gebaut wurde im Zeitraum von August 2018 bis Juni 2019. Das Integrierte Handlungskonzept Paunsdorf bildet die Grundlage für die Umsetzung der Projekte. Neben der Finanzierung des Quartiersmanagements wird auch die Gestaltung von öffentlich zugänglichen Wohnhöfen gefördert sowie die Sanierung des Offenen Freizeittreffs Crazy vorbereitet. Weitere Projekte sind in Vorbereitung. Auskunft dazu gibt das Amt für Wohnungsbau und Stadterneuerung.
Der Gutspark Paunsdorf, auch bekannt als „Großer Garten“, war in den vergangenen Jahren verschlossen. Die benachbarte 24. Grundschule, der Hort und die angrenzende Kita nutzten den Bereich seit elf Jahren nicht mehr. Auf dem rund 13.440 Quadratmeter großen Areal hatte sich inzwischen eine artenreiche Wildnis entwickelt. Die Umgestaltung knüpfte an diese Entwicklung an. Das Gesamtprojekt entstand mit intensiver Beteiligung der Bewohner und Bewohnerinnen des Stadtteils. Nun vermittelt die Anlage als erlebnisreicher Park mit seiner Gestaltung, der Tier- und Pflanzenvielfalt sowie den besonderen Ausstattungselementen eine enge Verbindung zwischen Mensch und Natur.
Großer Garten Paunsdorf soll bis 2019 zu einer begehbaren Grün-Oase im Leipziger Nordosten werden
Großer Garten Paunsdorf soll bis 2019 zu einer begehbaren Grün-Oase im Leipziger Nordosten werden
Empfohlen auf LZ
So können Sie die Berichterstattung der Leipziger Zeitung unterstützen:












Keine Kommentare bisher