„Die Schwimmhalle im Leipziger Südwesten, das Schwimmbad an der Elster, ist verkehrlich nur über die umliegenden verkehrsreichen Straßen zu erreichen. Für Bewohnerinnen und Bewohner aus Schleußig und Plagwitz wäre eine Fuß- und Radwegeverbindung über die Entenbrücke oder die Limburger Straße entlang des Elsterufers absolut wünschenswert“, schrieben die Grünen 2018 in ihren Antrag, den Bau eines Geh-/Radweges am „Sportbad an der Elster“ zu prüfen. Die Stadt hat geprüft und scheitert. Denn die Grundstücksverwaltung Limburgerstraße 3–5 bleibt hart.
Im Frühjahr 2019 gab das Verkehrs- und Tiefbauamt zum Grünen-Antrag eigentlich schon eine positive Stellungnahme ab. Darin bestätigte es, dass die Stadt langfristig sowieso so eine Wegeverbindung plante: „Der Vorschlag, zwischen Limburger Straße und dem Sportbad an der Elster eine Wegeverbindung am Westufer der Elster zu schaffen, ist sinnvoll und Bestandteil sowohl des Konzeptionellen Stadtteilplans Leipziger Westen als auch des aktuellen Landschaftsplanes. Auf der gegenüberliegenden Seite der Antonienstraße würde dieser Weg auf den Verlauf der Hauptwegeachse im Volkspark Kleinzschocher treffen und im Park seine Fortsetzung finden.“
Und eigentlich wollte man die geprüften Varianten recht schnell vorlegen: „Die Varianten- und Prüfergebnisse und die daraus resultierende weitere Vorgehensweise werden dem Stadtrat bis Ende 2019 vorgelegt.“
Aber so schnell ging es nun doch wieder nicht. Die Informationsvorlage zu den geprüften Wegevarianten geht erst dieser Tage dem Stadtrat zu.
Aber die Prüfung ergab nun genau das, was schon vor über 20 Jahren zu massiver Verstimmung geführt hatte: „Die Führung eines öffentlichen Weges auf diesen Flächen setzt voraus, dass hierzu mit den Eigentümern Regelungen (Erwerb, Dienstbarkeiten, öffentliche Widmung) getroffen werden können. In diesem Zusammenhang wurde der Kontakt zur Grundstücksverwaltung der privaten Wohnanlage Limburgerstraße 3–5 hergestellt.
Es wurde wiederholt mitgeteilt, dass die öffentliche Nutzung von privaten Flächen seitens der Eigentümervertreter abgelehnt wird und eine ,Vereinnahmung der Flächen und des Eigentums‘ mittels juristischer Schritte verhindert werden soll. Demnach ist Einvernehmen zur Herstellung bzw. öffentlichen Nutzung des Weges nicht absehbar. Eine rechtliche Grundlage für die Nutzung der Flächen liegt nicht vor.“
Die Stadt hatte hier schon in den 1990er Jahren versucht, eine öffentliche Durchwegung zu sichern. „Im Rahmen des Baugenehmigungsverfahrens für die hier befindliche Wohnanlage konnte eine öffentliche Wegeverbindung nicht berücksichtigt werden, einem Widerspruch zur entsprechenden Ergänzung der Baugenehmigung mit der Auflage einer öffentlichen Rad- und Wanderwegverbindung wurde am 26.05.1998 stattgegeben. Nachfolgende weitere Bestrebungen, die Realisierung eines öffentlichen Radweges zu ermöglichen, wurden im November 2005 seitens Amt für Bauordnung und Denkmalpflege eingestellt“, heißt es in der Vorlage.
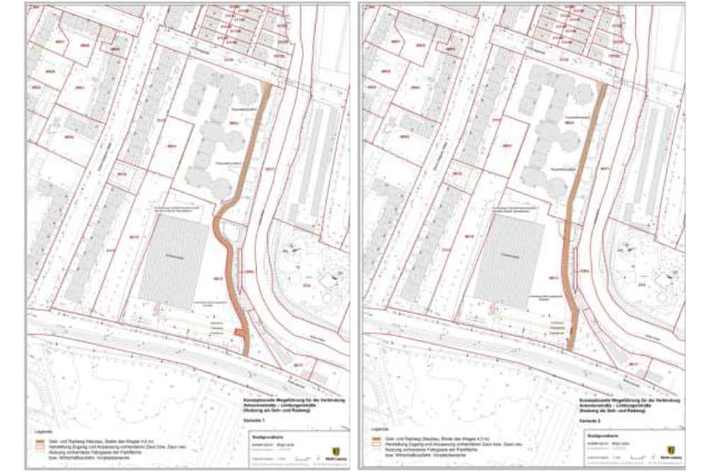
Die beiden abgebildeten Wegeskizzen zeigen, dass zumindest der nördliche Teil des Weges über das Gelände der Wohnanlage führen würde. Ansonsten müsste man direkt in den Uferbereich ausweichen und das ist wasserrechtlich verboten.
Aber die Skizzen zeigen auch, dass eine mögliche Lösung sein könnte, den Weg östlich der Schwimmhalle anzulegen. Schwimmhalle und Gelände gehören der Stadteigenen Sportbäder GmbH. Nur müsste der Weg dann ostwärts mit einer Brücke über die Weiße Elster geführt werden, sodass man direkt am Spielplatz an der Oeserstraße herauskäme. Was die Grünen ja 2018 auch mit beantragt hatten.
Auf die Möglichkeit, hier eine Fußgängerbrücke zu bauen, geht die Informationsvorlage jetzt gar nicht erst ein. Vielleicht geht das Verkehrs- und Tiefbauamt davon aus, dass die Grünen die Anmerkung aus der Stellungnahme von 2019 akzeptiert haben, wo man lesen konnte: „Die Errichtung einer weiteren Brücke, zusätzlich zur vorhandenen Entenbrücke (in ca. 100 m Entfernung) und der Schleußiger Brücke (in ca. 200 m Entfernung), ist in keiner Konzeption der Stadt Leipzig enthalten.
Die Herstellung einer solchen Verbindung würde sowohl einen ausgesprochen hohen finanziellen und technischen Aufwand für Planung, Genehmigung und Realisierung, als auch zusätzliche Eingriffe in die Uferbereiche und das Gewässer bedeuten. Auch für die Planung und Realisierung eines Brückenbauwerks stehen im Haushaltsplan 2019/20 und aufgrund des hohen Bedarfs an Ressourcen für vorhandene Brücken aus heutiger Sicht auch zukünftig keine finanziellen Mittel oder personelle Ressourcen zur Verfügung.“
Übrigens eine Stellungnahme, die sich inhaltlich widerspricht, da man ja zuvor das Argument der Grünen bestätigt hatte, dass man zu Fuß nur über riesige Umwege zum „Sportbad an der Elster“ gelangt. Nicht die Brückenabstände dürften das Argument sein, sondern die tatsächlichen Wegelängen. Aber die Sache mit der Brücke als mögliche Lösung wird diesmal gar nicht angesprochen.
Stattdessen versucht es das Verkehrs- und Tiefbauamt diesmal mit diesem Argument: „Ziel soll sein, die zwischen Limburgerstraße und Antonienstraße kürzeste Wegeverbindung herzustellen, um die nichtmotorisierten Verkehrsarten zu fördern. Dieser Belang besitzt nicht das Gewicht, den Eingriff in das Eigentum zu rechtfertigen. Die gewünschte Durchwegung ist auch nicht alternativlos, da sich in ihrem Umfeld ein dichtes Straßennetz befindet, das die unproblematische Verbindung zwischen der Limburgerstraße und der Antonienstraße sicherstellt. Die gewünschte Durchwegung ist daher nicht zur Verkehrserschließung notwendig.“
Ist das der Richterspruch zum Thema? Es klingt jedenfalls so.
Hinweis der Redaktion in eigener Sache
Seit der „Coronakrise“ haben wir unser Archiv für alle Leser geöffnet. Es gibt also seither auch für Nichtabonnenten unter anderem alle Artikel der LEIPZIGER ZEITUNG aus den letzten Jahren zusätzlich auf L-IZ.de über die tagesaktuellen Berichte hinaus ganz ohne Paywall zu entdecken.
Unterstützen Sie lokalen/regionalen Journalismus und so unsere tägliche Arbeit vor Ort in Leipzig. Mit dem Abschluss eines Freikäufer-Abonnements (zur Abonnentenseite) sichern Sie den täglichen, frei verfügbaren Zugang zu wichtigen Informationen in Leipzig und unsere Arbeit für Sie.
Vielen Dank dafür.
Empfohlen auf LZ
So können Sie die Berichterstattung der Leipziger Zeitung unterstützen:










Keine Kommentare bisher