Die Städte Leipzig und Taucha planen gemeinsam ein neues Gewerbe- und Industriegebiet bei Merkwitz. Im Tauchaer Stadtanzeiger, Ausgabe November 2025, der ab dem 28. Oktober in allen Tauchaer Haushalten verteilt wird, erscheint dazu ein Informationsblatt mit weiteren Details zum Vorhaben. Anlass ist der geplante Beschluss des Tauchaer Stadtrates zur Offenlegung des Bebauungsplans „Gewerbe- und Industriegebiet Merkwitz“, mit dem die formelle Beteiligung der Öffentlichkeit eingeleitet wird.
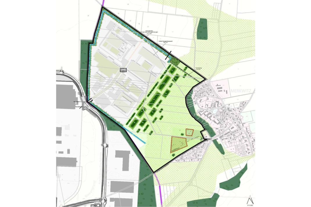
Das Projekt, das eine Erweiterung des Industrieparks-Nord darstellt, zielt darauf ab, die wirtschaftliche Zukunft der Region zu sichern und neue, hochwertige Arbeitsplätze zu schaffen. Das geplante Areal umfasst eine Gewerbe- und Industriefläche von circa 46 Hektar. Die Erschließung erfolgt ausschließlich über die bestehende BMW-Allee, wodurch eine direkte Anbindung an die Autobahn A14 gewährleistet wird. Das Vorhaben ist im Regionalplan Westsachsen sowie im Flächennutzungsplan bereits langfristig eingeplant.
Wirtschaftliche Effekte und Infrastrukturverbesserungen
Durch die Ansiedlung von voraussichtlich ein bis drei Unternehmen sollen zunächst 500 gut bezahlte Arbeitsplätze entstehen, mit dem Ziel, die Zahl langfristig auf 1.000 zu erhöhen. Dies wird nicht nur die Kaufkraft in Taucha steigern, sondern auch zu höheren GewerbesteuerÂeinnahmen führen, die für Investitionen in die lokale Infrastruktur wie Straßen, Gehwege und Schulen genutzt werden können.
Ein zentraler Aspekt der Planung ist die nachhaltige Gestaltung des Gebiets. Es sind umfangreiche Ausgleichsmaßnahmen vorgesehen, teilt die Stadt Taucha mit, darunter die Aufwertung von circa 40 Hektar Grünflächen. Zudem wird der Abstand zum Ortsrand Merkwitz mindestens 300 Meter betragen, und Gehölzriegel dienen als Sichtschutz.
Zusätzliche Lärmbelastungen sind nicht zulässig, und ein innovatives Regenwasserkonzept soll das Gebiet durch Rückhaltung und Verdunstung entlasten. Auch die Förderung von Dach- und Fassadenbegrünung sowie die Installation von Photovoltaikanlagen auf mindestens 30 % der Dachflächen sind geplant.
Verkehrskonzept und Bürgerbeteiligung
Das Verkehrskonzept sieht vor, die Erschließung ausschließlich über die BMW-Allee zu realisieren, ohne eine Anbindung an die Seegeritzer Straße. Parallel dazu sollen Radwege und der Öffentliche Personennahverkehr (ÖPNV) um Merkwitz verbessert werden.
Die Stadt Leipzig und die Stadt Taucha werden die Entwicklung und Vermarktung des Gebiets aus einer Hand steuern und gemeinsam über die Ansiedlungen entscheiden.
Im Zuge der Offenlegung ist außerdem ein Informationstermin in Merkwitz vorgesehen, bei dem interessierte Bürgerinnen und Bürger Gelegenheit haben, sich über die Planungen zu informieren und Fragen zu stellen.
Weitere Details zur Planung und FAQs sind hier abrufbar.
Empfohlen auf LZ
So können Sie die Berichterstattung der Leipziger Zeitung unterstützen:












Keine Kommentare bisher
Vorgesehen sind mind. 30% der Dachflächen mit PV-Anlagen einzudecken. Die Firmen sollten selber daran interessiert sein, eigengenutzten Strom zu erzeugen und somit die Dach- und Fassadenflächen möglichst optimal zu nutzen, also mehr als 50-60 der verfügbaren Flächen. Preiswerter werden sie den Strom nicht bekommen, auch wenn ersteinmal mehr in die Statik und die PV-Module investiert werden müssen..