Am Mittwoch, 8. Juli, wurde auch das mittlerweile heiß diskutierte Projekt des geplanten Schulanbaus an der Apollonia-von-Wiedebach-Schule in Connewitz vom Stadtrat abgestimmt. Ein Projekt, bei dem am Ende nicht wirklich klar war, wer für die desolate Informationspolitik eigentlich verantwortlich war: Die Baubürgermeisterin? Der Sozialbürgermeister? Die stadteigene LESG als Bauträger? Hätte der Stadtrat überhaupt noch zeitlichen Spielraum gehabt, wären wohl so richtig die Fetzen geflogen.
Aber tatsächlich wissen die Stadtratsfraktionen erst seit Mai wirklich, was da auf dem Schulhof der Apollonia-von-Wiedebach-Schule in den nächsten zwei Jahren errichtet werden soll. Auch wenn SPD-Stadtrat Christopher Zenker meinte, es hätte wohl doch ein paar frühere Informationen dazu gegeben, dass der Anbau eben nicht an der Stirnseite zur Scheffelstraße entstehen solle. 2017 gar. Was zumindest eine Überraschung gewesen wäre.
Gab es damals in einem Unterausschuss des Stadtrates schon so eine Skizze?
Aus Sicht von Katharina Krefft, Fraktionsvorsitzende der Grünen, ganz bestimmt nicht. Sie las der Stadtverwaltung für die vergeigte Kommunikation so richtig die Leviten, noch viel emotionaler als Marco Götze, der das zuvor auch schon für die Linksfraktion getan hat und von „Zustimmungsdruck“ sprach
Und auch SPD-Fraktionsvorsitzender Christopher Zenker hatte das dumme Gefühl, dass mit der Information durch die Verwaltung so manches schiefgelaufen ist. „Da haben wir wohl nicht genügend aufgepasst“, sagte er. Und meinte aus dem „Sammelplanungs- und Baubeschluss sowie Beschluss zum Abschluss von Mietverträgen zur Schaffung zusätzlicher Schulkapazitäten und Bestätigung außerplanmäßiger Auszahlungen nach § 79 (1) SächsGemO“ vom 27. Juni 2018 herauslesen zu können, es wäre wohl schon von einem mehrstöckigen Anbau im Pausenhof die Rede gewesen.
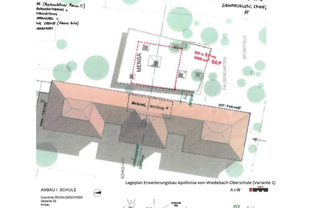
Aber die Vorlage kann man sich ja bis heute aufrufen. Dort stand eindeutig noch das alte Projekt: „2.5 Erweiterung von Kapazitäten an bestehenden Schulgebäuden: Oberschulen – Apollonia-von-Wiedebach-Schule – Anbau mit 6 AUR mit Erhöhung um 1 Zug zum Schuljahresbeginn 2020/21.Gesamtkosten ca. 4,5 Mio. €“.
Immerhin schon mit der Skizze eines einstöckigen Mensabaus im Innenhof. Von einem mehrstöckigen Schulanbau findet man dort nichts. Oder es steht in einer Anlage, die der Öffentlichkeit nicht zugänglich ist.
Ergebnis: Ein Stadtrat, der im Frühjahr 2020 vor vollendeten Tatsachen stand
Für die vorgezogenen Baumfällungen im Februar 2020 gab es folglich auch Kritik, genauso wie für die Tatsache, dass die Zeitfrist bis zu den geplanten Bauarbeiten im August viel zu kurz war, dass überhaupt noch irgendwelche Änderungen an dem Projekt denkbar wären.
Einen möglichen Grund dafür, dass die Sache so schiefging, sieht Katharina Krefft im Zugeständnis des Stadtrates an die Verwaltung im Zusammenhang mit der Sammelvorlage von 2018, dass die Stadträt/-innen nicht über jedes Detail der Planungen noch einmal extra informiert werden wollten, sondern der Beschluss für die Sammelvorlage gleichzeitig der Auftrag für die Verwaltung war, die 15 darin enthaltenen Schulbaumaßnahmen zügig in den Jahren 2019/2020 umzusetzen.
Nur der zuständige Ausschuss sollte über Änderungen rechtzeitig informiert werden. Aber das ist wohl nicht geschehen. Die Ratsmitglieder gingen wohl auch zu Recht davon aus, dass die Projekte dann auch so umgesetzt werden würden wie in der Vorlage beschrieben.

Doch was sich die Planer da bei der Erweiterung der Apollonia-von-Wiedebach-Schule ausdachten, war eine komplette Änderung des Projekts. Der ästhetisch durchaus überzeugende Anbau an der Scheffelstraße fiel weg, dafür wurde aus dem geplanten Mensa-Flachbau im Innenhof ein mehrstöckiger Kubus, der auch die Nachbarn im Haus der Demokratie verschatten wird.
Die CDU-Fraktion brachte in ihrem Änderungsantrag auch den Punkt vor, der Bau könnte ja durchaus einige Meter Richtung Arno-Nitzsche-Straße verschoben werden. Aber diesen Antragspunkt zog die Fraktion zurück, weil der den Baustart für den dringend benötigten Erweiterungsbau deutlich verzögert hätte. Und dass die zusätzlichen Unterrichtsräume dringend gebraucht werden, da waren sich alle Fraktionen einig.
Schulbürgermeister Thomas Fabian erklärte dann auch gleich zum Auftakt der Debatte, dass die Verwaltung die Änderungsanträge von Linksfraktion (zu einer besseren Hofgestaltung) und SPD-Fraktion (zur Fassadenbegrünung) komplett übernehmen würde. Dazu auch Punkt 2 aus dem CDU-Antrag, nach dem die Holzfassade lackiert worden wäre. Aber gegen den Punkt opponierte Katharina Krefft recht heftig, denn gerade weil die geplante vorgegraute Lärchenholz-Fassade nicht lackiert werden muss, sei sie ökologisch. Der Punkt wurde also extra abgestimmt und mit 23: 39:4 Stimmen abgelehnt.
Blieb also nur noch die Verwaltungsvorlage, die jetzt die Änderungsanträge von SPD und Linken beinhaltete. Und hier stimmten dann einige Stadträte durchaus nach ihren Bauchschmerzen ab – so wie es Thomas Kumbernuß (Die PARTEI) in seinem kurzen Statement erklärt hatte. Denn weder waren die meisten von der modernen Ästhetik des Baus überzeugt, noch waren sie glücklich mit der völlig verunglückten Kommunikationsstrategie. Aber Marco Götze (Linke) hat recht: Die Zeit ist abgelaufen. Die Verwaltung hat mit ihrer viel zu späten Vorlage dem Stadtrat jede Möglichkeit genommen, zu reagieren und Korrekturen zu beschließen.
„So etwas wollen wir nicht noch einmal erleben“, sagte er.
Ergebnis: 47 Stadträt/-innen stimmten der Vorlage (teils schweren Herzens) zu, übrigens auch die CDU. Nur die AfD stimmte aus Prinzip geschlossen dagegen. Und sechs Stadträt/-innen aus der Linksfraktion enthielten sich ebenso schweren Herzens der Stimme.
Blieb noch die Frage nach den Turmfalken, die als städtisches Projekt im Dach der Apollonia-von-Wiedebach-Schule angesiedelt worden waren. „Für die Turmfalken werden wir ein neues Zuhause finden“, meinte Baubürgermeisterin Dorothee Dubrau auf die Nachfrage von Katharina Krefft hin.
Da möchte man in Leipzig eigentlich kein Turmfalke sein, wenn man jedes Mal umziehen muss, wenn die Verwaltung mal was bauen will.
Die Debatte vom 8. Juli 2020 im Stadtrat
Video: Livestream der Stadt Leipzig
Die Stadt will die Apollonia-von-Wiedebach-Schule schon ab dem Sommer sanieren und um einen Neubau im Schulhof erweitern
Hinweis der Redaktion in eigener Sache
Seit der „Coronakrise“ haben wir unser Archiv für alle Leser geöffnet. Es gibt also seither auch für Nichtabonnenten unter anderem alle Artikel der LEIPZIGER ZEITUNG aus den letzten Jahren zusätzlich auf L-IZ.de über die tagesaktuellen Berichte hinaus ganz ohne Paywall zu entdecken.
Unterstützen Sie lokalen/regionalen Journalismus und so unsere tägliche Arbeit vor Ort in Leipzig. Mit dem Abschluss eines Freikäufer-Abonnements (zur Abonnentenseite) sichern Sie den täglichen, frei verfügbaren Zugang zu wichtigen Informationen in Leipzig und unsere Arbeit für Sie.
Vielen Dank dafür.
Empfohlen auf LZ
So können Sie die Berichterstattung der Leipziger Zeitung unterstützen:












Es gibt 2 Kommentare
Christian schreibt richtig von einer “zementierten Sinnlosigkeit”. Es spricht so unendlich viel gegen den Erweiterungsbau an dieser Stelle.
Viel Platz wäre gewesen am Nordgiebel der Schule entlang der Scheffelstraße. Selbst eine Verschiebung an die Arno-Nitzsche-Straße wäre für alle Beteiligten, besonders für die Schulkinder, erheblich besser und der planerische Mehraufwand überschaubar gewesen.
Ich frage mich ernsthaft besorgt, warum der Stadtrat nicht aufsteht und sagt: So nicht, auch wenn sich das Ganze etwas verzögern sollte.
Wer sagte: das ist aber wirklich das allerletzte Mal … ?
Ich bin gespannt.
Wieder mal ein Desaster.
Ärgerlich und peinlich.
Weil man sich eben (und leider) nicht darauf verlassen kann, wenn man Bauaufgaben blind an die Verwaltung delegiert, dass diese ordnungsgemäß und zukunftstauglich umgesetzt werden.
Hier geht es um zementierte Sinnlosigkeit, die so jahrzehntelang Bestand haben wird!
Wieso lässt (fast der gesamte) Stadtrat der Verwaltung so etwas durchgehen und sich erpressen?
Und winkt nur mit dem Zeigefinger, “das möchte ich aber nicht noch einmal sehen?”
Für diese “Leistung” der Verwaltung muss es einfach Konsequenzen geben.