Der Platz ist knapp geworden in Leipzig und die Stadt sucht jetzt auch an den abenteuerlichsten Standorten nach Möglichkeiten, neue Schulen zu bauen. Manchmal wird es dann sogar ganz heimelig, wie an der Döbelner Straße in Stötteritz. Da kommt man in der Regel nur hin, wenn man ganz bewusst von der Papiermühlstraße Richtung Norden abbiegt. Irgendwann kommt dann die große Gartenanlage der Flora Stötteritz. Aber vorher trifft man auf die Döbelner Straße und eine große Brachfläche, wo ein Bebauungsplan jetzt einen Schulstandort sichern soll.
Damit an der Döbelner Straße in Zukunft eine Grundschule entstehen kann, muss der entsprechende Bebauungsplan für ein Teilgebiet zwischen den S-Bahnhöfen Stötteritz und Anger-Crottendorf beschlossen werden, teilt Leipzigs Verwaltung dazu mit. Denn bislang ist hier kein Schulneubau möglich.
Auch wenn in Stötteritz dringend noch eine Grundschule gebraucht wird. Wann sie freilich errichtet werden kann, steht noch nicht fest.
Wohnungen vs. Schulneubau
Der Eigentümer der derzeit brachliegenden Gewerbefläche möchte hier zudem Wohnungen hinsetzen. Der Bebauungsplanvorentwurf Nr. 443 „Gemeinbedarfsfläche Döbelner Straße“ ist daher jetzt von der Stadtspitze zur frühzeitigen Beteiligung der Öffentlichkeit freigegeben worden.
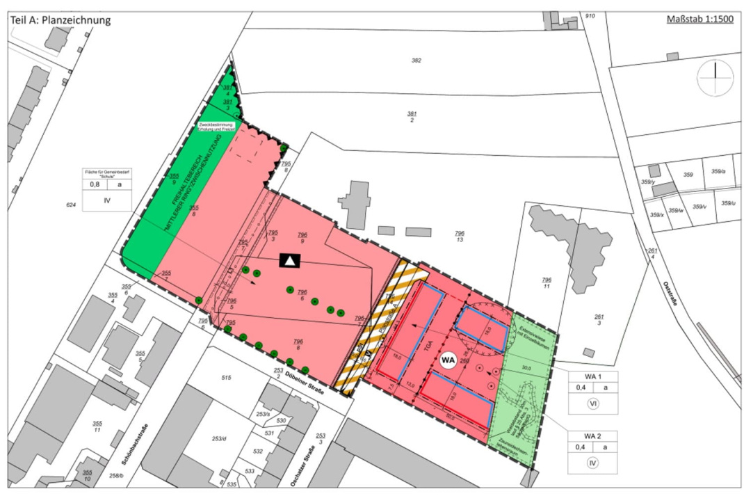
Die Stadt Leipzig kooperiert bei der Planung und den dafür entstehenden Kosten mit dem privaten Bauherrn, teilt die Verwaltung mit. Während die Stadt auf einem Teilstück des etwa 2,6 Hektar großen Gebiets eine dreizügige Grundschule mit Sporthalle und Sportfreiflächen bauen und eine öffentliche Grünfläche sichern möchte, will der Grundstückseigentümer ein Bauvorhaben mit etwa 80 Wohnungen realisieren.
Stadt sichert sich Belegungsrecht
Knapp ein Drittel der dort geplanten, vor allem großen Wohnungen soll mietpreis- und belegungsgebunden sein. Die Anfangsmiete ist dafür mit 6,50 Euro pro Quadratmeter festgelegt, zudem hat die Stadt in den ersten 15 Jahren das Belegungsrecht für diesen Wohnraum – die Wohnungen können also von Menschen gemietet werden, die einen weißen Wohnberechtigungsschein haben.
Um die derzeit privaten Flächen des Schulstandortes zu erhalten, soll mit dem Eigentümer ein für innerstädtischen Geschosswohnungsbau geeignetes Grundstück an anderer Stelle im Stadtgebiet getauscht werden.
Empfohlen auf LZ
So können Sie die Berichterstattung der Leipziger Zeitung unterstützen:





















Keine Kommentare bisher