2023 können sich die Kräne drehen, denn am 13. Juli nahmen gleich drei wichtige Vorlagen die Hürden in der Ratsversammlung. Vorlagen, die auch der Bauträger, die IMFARR, braucht, um endlich loslegen zu können am ehemaligen Eutritzscher Freiladebahnhof. Denn die galoppierenden Baupreise setzen alle Beteiligten unter Druck.
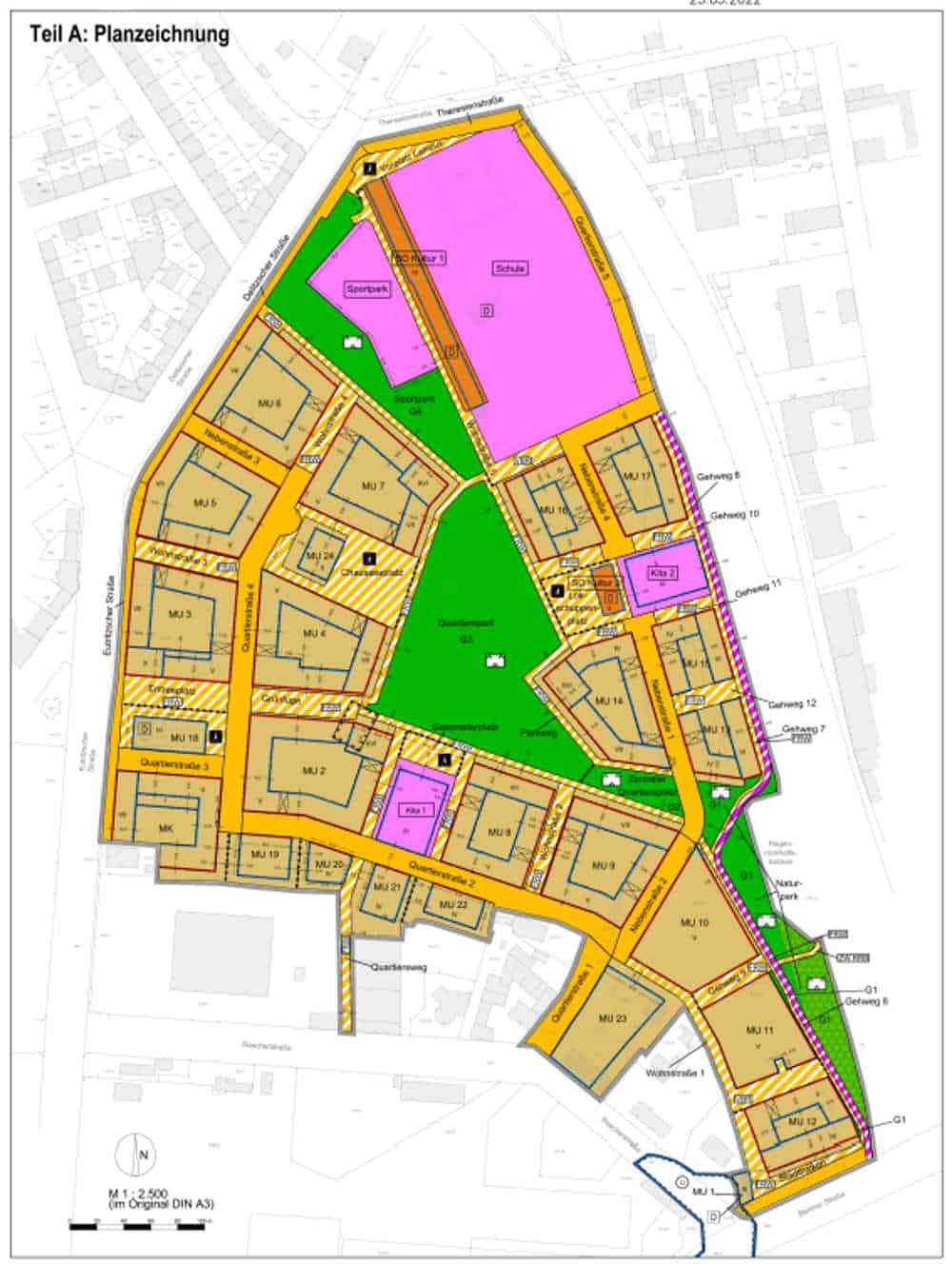
Nicht nur den Bauhabenträger, der hier 2.400 Wohnungen bauen will, und zwar in großen Teilen in Holzbauweise, sodass der Betonanteil deutlich gesenkt werden kann, sondern auch die Stadt, die hier nicht warten kann, bis 2028 alle Wohnungen fertig sind. Denn dann müssen auch die geplante Gemeinschaftsschule, die beiden Kitas, der Park, der Sportplatz und der Radschnellweg fertig sein. Und auch die Stadt muss die galoppierenden Baupreise irgendwie auffangen. Jeder Monat, der bis zum Baustart vergeht, ist richtig viel Geld wert.
Das betonte am 13. Juli nicht nur OBM Burkhard Jung, der die drei Vorlagen der Stadt vorstellte – den Flächennutzungsplan, den Bebauungsplan und die Vorlage zur „gemeinwohlorientierten Quartiersentwicklung“, mit der die Stadt den Flächenankauf im Gelände absichert.
Denn die Flächen für Park, Straßen und Radschnellwege bekommt die Stadt ja quasi geschenkt.
Aber die Baufelder 10 und 11 Richtung Berliner Straße muss die Stadt noch vom Geländeeigentümer erwerben. Hier hat ja der Stadtrat beschlossen, dass hier vor allem kooperative Baumodelle zur Anwendung kommen sollen. Mit dieser Vorlage bekommt die Stadt das Erstandienungsrecht.
Eigentlich auch über beide Baufelder hinaus, wie es in der Vorlage heißt: „Mit der Vorlage soll der Oberbürgermeister beauftragt werden, für den Bereich des Freiladebahnhofes an der Eutritzscher / Delitzscher Straße neben den bereits vertraglich vereinbarten zukünftigen Erwerbsgrundstücken für Grünflächen, Erschließung, Kindertagesstätten, Schule sowie Lok- und Verladeschuppen, weitere Grundstücke zu benennen, die potenziell für einen Ankauf durch die Stadt infrage kommen. Langfristiges Ziel wird es sein, diese Flächen für eine gemeinwohlorientierte Quartiersentwicklung zu nutzen.“
Lieber das Vorkaufsrecht sichern
Was übrigens den Fraktionen von Linken und Grünen nicht weit genug ging. Der Bauträger hat zwar versichert, dass er gar nicht vorhat, in nächster Zeit wieder zu verkaufen. Aber die Stadt müsse vorsorgen, sagte etwa Kristina Weyh für die Grünen. Falls der Eigentümer irgendwann in Zukunft tatsächlich Flächen oder Wohnungsbestände verkaufen wolle, müsste die Stadt Leipzig unbedingt ein Vorkaufsrecht vertraglich gesichert haben. Ob künftige Stadträte das auch nutzen, sei eine andere Frage, so Weyh. Aber es müsste zumindest gesichert sein.
So ähnlich äußerte sich auch Franziska Riekewald für die Linke, die ansonsten sogar ganz froh zu sein schien, dass sie diesmal eine Rede zum Eutritzscher Freiladebahnhof halten konnte, die ohne Wut im Bauch entstanden war.
Denn das Ringen um dieses „Vorzeigequartier“ (Kristina Weyh) war lang, hart und kräftezehrend. Auch wenn die Bauherren (der Besitzerwechsel machte ja genug Furore) hier erstmals frühzeitig auch die Nachbarschaft mit einbezogen, damit sich das neue Wohnquartier auch in die angrenzenden Stadtteile einfügt.
Dazu kamen die nur zu berechtigten Wünsche aus dem Stadtrat, die hier ein möglichst ökologisches Bauen verlangten, eine nachhaltige Regenwassernutzung („Schwammstadt“), den Erhalt kultureller Angebote in den denkmalgeschützten Schuppen, Platz für den Radschnellweg und – das zweite Thema am 13. Juli – mehr umweltfreundliche Mobilität.
Krokodilstränen für das Automobil
Was nun einmal heißt: Platz für Carsharing, neue attraktive Haltestellen für die Straßenbahn, Anschluss an den Radschnellweg Halle-Leipzig und vor allem: weniger Autos. Stichwort: autoarmes Quartier. Etwas, was sogar FDP-Stadtrat Sven Morlok begrüßte, nachdem erst ein AfD-Stadtrat herumjammerte, es gäbe dann nicht genug Stellplätze für Autos. Nachher folgte noch ein zweiter.
Da soll zum ersten Mal in Leipzig ein (relativ) autoarmes Quartier entstehen, bei dem die rund 1.000 Stellplätze dann auch noch in Parkhäusern unterzubringen sind und die Straßen autofrei bleiben. Ob Familien künftig überhaupt Autos brauchen werden (Riekewald: „Es lebt sich wirklich gut ohne Auto.“), ist völlig offen.
Denn neben Schule, zwei Kitas, Sportplatz und Park wird es ja auch einen Nahversorger im Quartier geben. Viele Wege entfallen also einfach. Und dafür sollen umweltfreundliche Verkehrsarten gut angebunden sein. Jeder, der hierherziehe, wisse dann, was auf ihn zukäme, betonte Sven Morlok.
Die Frage sei eher, wer es sich dann leisten kann. Denn es werden zwar 800 von den 2.400 Wohnungen gefördert und damit zu bezahlbaren Wohnungen. Wenn aber bei den anderen Wohnungen allein die Baukosten schon 12 Euro je Quadratmeter kalt und mehr an Miete fordern, wird das für viele Leipziger eher unerschwinglich. Wobei die Gehaltsentwicklung in einigen Branchen ja zeigt, dass sehr wohl genug Menschen da sind, die sich nach heutigen Maßstäben auch diese Mietwohnungen leisten können.
Ob die preiswerter geworden wären, wenn die Stadt die großen gemeinnützigen Flächen nicht geschenkt bekommen, sondern zum Verkehrswert angekauft hätte, ist durchaus eine diskutable Frage. Aber die Skepsis bei Burkhard Jung war nach dieser Anregung durch Sven Morlok durchaus unübersehbar.
In die Richtung zielte ja das von den Freibeutern geforderte Prüfschema zum bezahlbaren Wohnen, ließ Morlok zumindest anklingen.
Grünes Licht für das Wohnquartier – Abfuhr für die PKW-Lobby
Aber auch wenn die AfD-Fraktion noch einmal so tat, als könnte man jetzt die Autofrage noch einmal vom Urschleim her durchdiskutieren, waren die meisten Stadträt/-innen an diesem Tag genauso wie Jung froh, endlich die drei entscheidenden Vorlagen beschließen zu können, in denen fünf Jahre Arbeit und zähe Verhandlungen stecken. Angefangen 2017 mit der „Planungs- und Entwicklungsvereinbarung“, in der die ersten Grundzüge der Planung vereinbart wurden, über den Beschluss zum Masterplan im März 2019 bis zum kurz darauf folgenden Eigentümerwechsel.
Für Zuschauer waren das wirklich lange fünf Jahre. Aber die drei Vorlagen seien auch mit dem Eigentümer abgestimmt, betonte Jung. Die Stadtratsentscheidung am 13. Juli müsste also auch in dessen Interesse sein.
Die Abstimmung fiel dann eindeutig aus, mit voller Zustimmung zu allen drei Vorlagen der Stadt. Auch die Änderungsanträge von Linken und Grünen bekamen klare Voten von 44 : 8 und 45 : 7 Stimmen.
Und das Autoansinnen der AfD ging wie erwartbar mit 7 : 40 Stimmen unter. Die Zeiten, dass das Automobil bei Bauvorhaben bestimmt, sind vorbei. Die Zukunft gehört – dem Stadtratsbeschluss zur nachhaltigen Mobilität entsprechend – den umweltfreundlichen Verkehrsarten.
Empfohlen auf LZ
So können Sie die Berichterstattung der Leipziger Zeitung unterstützen:



























Keine Kommentare bisher